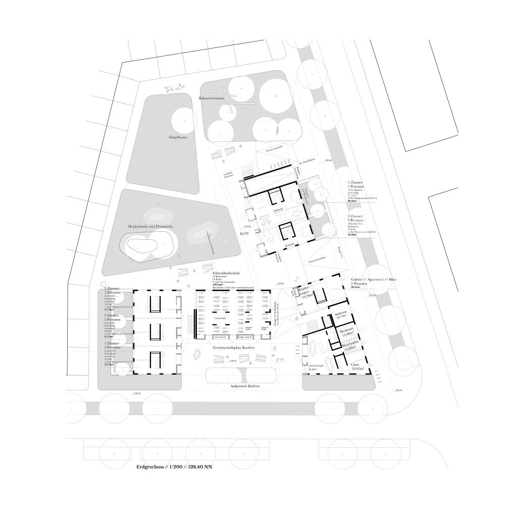
Vier Baukörper bilden das Ensemble FREIHAMPTON und werden durch eine polyvalente, vertikale Freiraumskulptur erschlossen. Diese gemeinschaftliche Erschließungsplastik vermittelt zwischen dem einzelnen Haus und dem städtischen Raum. Die Gemeinschaft präsentiert sich und kommuniziert über die Freiräume mit dem Stadtraum. Zur vertikalen Freiraumskulptur mit ihrer Erschließungsfunktion hin bilden alle Wohnungen eine besondere raumhaltige Wand aus. Sie ist die Membran zur Öffentlichkeit, nimmt von Innen wie von Außen unterschiedlichste Nutzungen auf und spiegelt die Persönlichkeiten ihrer Nutzer. Die Grundrisse eröffnen durch ihre Offenheit maximale Möglichkeiten der Nutzung. Der klassische Nachweis mit Zimmern unterschiedlicher Größe für zugewiesene Nutzungen und Lebensformen wird für die Förderung geführt. Doch schaffen die Typologien ein Angebot zur Aneignung und zur Auflösung alter Raumhierarchien.
Gemeinschaftliche Flächen im Wohnungsbau werden oftmals nur über Bonusflächen ermöglicht. Vertikale gemeinschaftliche genutze Flächen sind weder Laubengangerschließungen noch private Balkone. Eine Abwägung bei den Ausweisungen von Grundflächen und Geschossflächen muß im Sinne der gemeinschaftlichen Schwellenräume wieder möglich werden. Das Gleiche gilt für die Membran zur Öffentlichkeit, der Außenfassade. Als räumlicher Filter vermittelt sie aus dem Privaten zum Gemeindschaftlichen und kann nicht allein durch bauphysikalische Notwendigkeiten definiert werden. Die Wand als Raum bietet eine gute und aneignungsfähige Gestaltung für alle Mieter*innen. Sie wird nicht durch die erste Bewohnergeneration entworfen, sondern ist ab dem ersten Bewohnen ein Ermöglichungs- und Aneignungsraum für alle.
Eine hohe Erdgeschosszone bietet großzügigen Raum für andere Lebensformen. Die Raumhöhe von 280cm in den Obergeschossen lässt auch andere Nutzungen neben dem Wohnen zu. Die Kerne und die Schächte werden in jedem Modul definiert. Kleine Deckenspannweiten ermöglichen eine wirtschaftliche Konstruktion mit Hybriddecken aus BSH und Beton. Der Stempel für die 60qm-Wohnung bietet maximale Offenheit für unterschiedliche Lebensstile. Die Grundrisse eröffnen durch ihre Offenheit maximale Möglichkeiten der Nutzung. Der klassische Nachweis mit Zimmern unterschiedlicher Größe für zugewiesene Nutzungen und Lebensformen wird für die Förderung geführt. Doch schaffen die Typologien ein Angebot zur Aneignung und zur Auflösung alter Raumhierarchien.
Das Projekt atmet das Leben. Es scheint eher beim Detail als beim Gebäudevolumen zu beginnen und bei der Frage, wie ein Raum zu beleben ist. Das Bild vom Leben steht an erster, der Plan an zweiter und die städtebauliche Fügung an dritter Stelle. Aber dies ist keine schlechte Reihenfolge, im Gegenteil. Auch die städtebauliche Konstellation ist nicht nur ein Resultat des Bebauungsplans. Das urbane Ensemble zeigt gleichermaßen das Interesse am Leben und wie man zusammenlebt auf. Daher richtet sich die Aufmerksamkeit sowohl auf die innere Seite der Bebauung als auch auf den Raum zur Straße hin…Kein architektonisches typologisches Denken liegt dem Entwurf zugrunde, sondern eine Galerie, die das Zusammenleben ermöglicht. Eine Galerie, die alles und jeden zu jeder Zeit verbindet. Auch die Fassade – oder eher die Wand – zwischen außen und innen ist ein Schlüssel zum Projekt. Diese Wand wird zum Instrument. Eine mäandernde Linie, welche dem Außen- und dem Innenraum gleichermaßen Platz bietet. Die Wand wird einerseits „kräftig“ und auf der anderen Seite „schlank“…Dabei ist die Galerie zu einem Aufenthaltsraum weiterentwickelt. Dies ist ein möglicher Weg zur Verteilung von Formen des Lebens innerhalb des Hauses, aber genauso einer, um dem Leben selber Raum zu geben.
Die multifunktionale Fassade spielt dabei eine wichtige Rolle. Es geht dabei um das Verhältnis und die richtige Einstellung zwischen Privatheit und Öffentlichkeit. Aber genauso handelt es sich auch um eine funktionale Schicht mit etwas Stauraum und einem Sitzplatz…Der Entwurf besteht aus vielen kleinen Erfindungen, die das Leben besser machen, darunter insbesondere die Fassade. Es wird debattiert, ob dieses Projekt aus vier (Abstandsflächenproblematik) oder aus einem Gebäude (widerspricht der offenen Bebauung) besteht, und welche baurechtlichen Konsequenzen und Probleme sich aus der einen oder anderen Sichtweise ergeben. Hier liegt jedoch gleichzeitig auch das Potenzial des Entwurfs, denn er schlägt vor, das Prinzip des geringeren Maßstabs und der Kleinteiligkeit mit der Idee eines gut und praktisch organsierten Ensembles zu kombinieren. Genau dort liegt auch die Schönheit des Projektes.
Studio Urbane Strategien GmbH
Leipziger Platz 2
70197 Stuttgart
Prof. Dr. Martina Baum
Prof. Markus Vogl
Architekten & Stadtplaner BDA
info@studiourbanestrategien.com
Tel. 0711 31 55 03 93
Universität Stuttgart, SuE: Lehrstuhl für Städtebau und Entwerfen
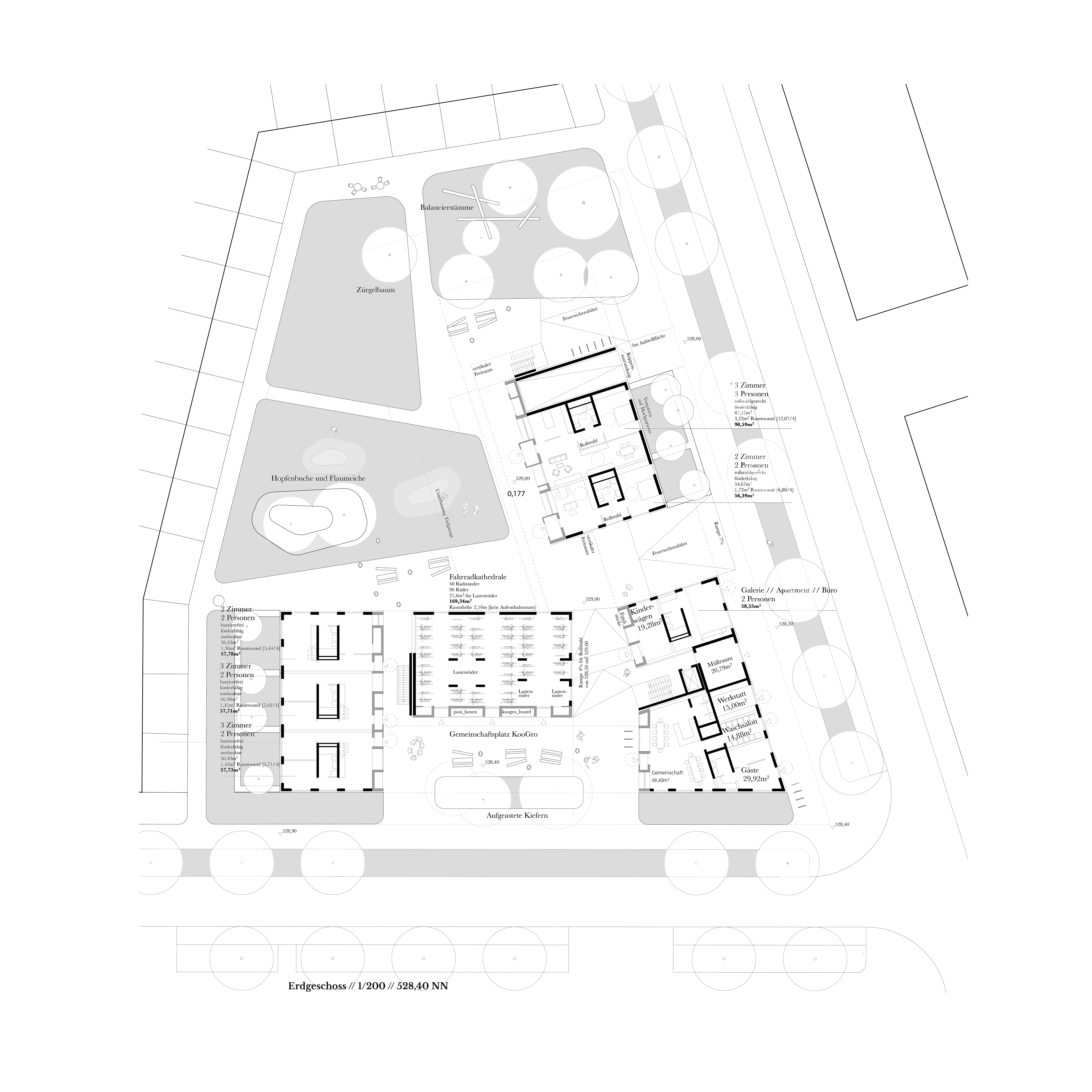
Vier Baukörper bilden das Ensemble FREIHAMPTON und werden durch eine polyvalente, vertikale Freiraumskulptur erschlossen. Diese gemeinschaftliche Erschließungsplastik vermittelt zwischen dem einzelnen Haus und dem städtischen Raum. Die Gemeinschaft präsentiert sich und kommuniziert über die Freiräume mit dem Stadtraum. Zur vertikalen Freiraumskulptur mit ihrer Erschließungsfunktion hin bilden alle Wohnungen eine besondere raumhaltige Wand aus. Sie ist die Membran zur Öffentlichkeit, nimmt von Innen wie von Außen unterschiedlichste Nutzungen auf und spiegelt die Persönlichkeiten ihrer Nutzer. Die Grundrisse eröffnen durch ihre Offenheit maximale Möglichkeiten der Nutzung. Der klassische Nachweis mit Zimmern unterschiedlicher Größe für zugewiesene Nutzungen und Lebensformen wird für die Förderung geführt. Doch schaffen die Typologien ein Angebot zur Aneignung und zur Auflösung alter Raumhierarchien.
Gemeinschaftliche Flächen im Wohnungsbau werden oftmals nur über Bonusflächen ermöglicht. Vertikale gemeinschaftliche genutze Flächen sind weder Laubengangerschließungen noch private Balkone. Eine Abwägung bei den Ausweisungen von Grundflächen und Geschossflächen muß im Sinne der gemeinschaftlichen Schwellenräume wieder möglich werden. Das Gleiche gilt für die Membran zur Öffentlichkeit, der Außenfassade. Als räumlicher Filter vermittelt sie aus dem Privaten zum Gemeindschaftlichen und kann nicht allein durch bauphysikalische Notwendigkeiten definiert werden. Die Wand als Raum bietet eine gute und aneignungsfähige Gestaltung für alle Mieter*innen. Sie wird nicht durch die erste Bewohnergeneration entworfen, sondern ist ab dem ersten Bewohnen ein Ermöglichungs- und Aneignungsraum für alle.
Eine hohe Erdgeschosszone bietet großzügigen Raum für andere Lebensformen. Die Raumhöhe von 280cm in den Obergeschossen lässt auch andere Nutzungen neben dem Wohnen zu. Die Kerne und die Schächte werden in jedem Modul definiert. Kleine Deckenspannweiten ermöglichen eine wirtschaftliche Konstruktion mit Hybriddecken aus BSH und Beton. Der Stempel für die 60qm-Wohnung bietet maximale Offenheit für unterschiedliche Lebensstile. Die Grundrisse eröffnen durch ihre Offenheit maximale Möglichkeiten der Nutzung. Der klassische Nachweis mit Zimmern unterschiedlicher Größe für zugewiesene Nutzungen und Lebensformen wird für die Förderung geführt. Doch schaffen die Typologien ein Angebot zur Aneignung und zur Auflösung alter Raumhierarchien.
Das Projekt atmet das Leben. Es scheint eher beim Detail als beim Gebäudevolumen zu beginnen und bei der Frage, wie ein Raum zu beleben ist. Das Bild vom Leben steht an erster, der Plan an zweiter und die städtebauliche Fügung an dritter Stelle. Aber dies ist keine schlechte Reihenfolge, im Gegenteil. Auch die städtebauliche Konstellation ist nicht nur ein Resultat des Bebauungsplans. Das urbane Ensemble zeigt gleichermaßen das Interesse am Leben und wie man zusammenlebt auf. Daher richtet sich die Aufmerksamkeit sowohl auf die innere Seite der Bebauung als auch auf den Raum zur Straße hin…Kein architektonisches typologisches Denken liegt dem Entwurf zugrunde, sondern eine Galerie, die das Zusammenleben ermöglicht. Eine Galerie, die alles und jeden zu jeder Zeit verbindet. Auch die Fassade – oder eher die Wand – zwischen außen und innen ist ein Schlüssel zum Projekt. Diese Wand wird zum Instrument. Eine mäandernde Linie, welche dem Außen- und dem Innenraum gleichermaßen Platz bietet. Die Wand wird einerseits „kräftig“ und auf der anderen Seite „schlank“…Dabei ist die Galerie zu einem Aufenthaltsraum weiterentwickelt. Dies ist ein möglicher Weg zur Verteilung von Formen des Lebens innerhalb des Hauses, aber genauso einer, um dem Leben selber Raum zu geben.
Die multifunktionale Fassade spielt dabei eine wichtige Rolle. Es geht dabei um das Verhältnis und die richtige Einstellung zwischen Privatheit und Öffentlichkeit. Aber genauso handelt es sich auch um eine funktionale Schicht mit etwas Stauraum und einem Sitzplatz…Der Entwurf besteht aus vielen kleinen Erfindungen, die das Leben besser machen, darunter insbesondere die Fassade. Es wird debattiert, ob dieses Projekt aus vier (Abstandsflächenproblematik) oder aus einem Gebäude (widerspricht der offenen Bebauung) besteht, und welche baurechtlichen Konsequenzen und Probleme sich aus der einen oder anderen Sichtweise ergeben. Hier liegt jedoch gleichzeitig auch das Potenzial des Entwurfs, denn er schlägt vor, das Prinzip des geringeren Maßstabs und der Kleinteiligkeit mit der Idee eines gut und praktisch organsierten Ensembles zu kombinieren. Genau dort liegt auch die Schönheit des Projektes.
Studio Urbane Strategien GmbH
Leipziger Platz 2
70197 Stuttgart
Prof. Dr. Martina Baum
Prof. Markus Vogl
Architekten & Stadtplaner BDA
info@studiourbanestrategien.com
Tel. 0711 31 55 03 93
Universität Stuttgart, SuE: Lehrstuhl für Städtebau und Entwerfen