Die Umgebung des Schütze-Areals im Kreis 5 zeichnet sich durch bauliche Dichte, Nutzungsmischung und strassenbegleitende Gebäude aus, die klassische urbane Strassenräume bilden. Die neue Bebauung orientiert sich daran, ergänzt das Vorhandene und entwickelt es weiter. Dicht, kompakt und urban ist die Prämisse für die Transformation des Schütze-Areals. Ein haushälterischer Umgang mit Land spielt dabei eine ebenso wichtige Rolle wie eine städtebauliche Setzung in einer heterogenen urbanen Umgebung.
Ein neuer Baustein aus Pestalozzi-Bibliothek, Quartierhaus und Turnhalle ergänzt die bestehende Bebauung an der Heinrichstrasse und entlang des Schützewegs. Die Nutzungen kommunizieren über die Erdgeschosse mit dem Strassenraum und den Freiräumen, zeigen ihre Nutzung nach aussen und laden die Menschen ein. Die Massstäblichkeit orientiert sich an der ehemaligen industriellen Nutzung, welche auch die neuen Gebäude in der Umgebung aufgenommen haben. Die hohe Nutzungsdichte und -intensität sowie die attraktiven Freiflächen machen das Schütze-Areal zu einem urbanen Ort und zentralen Baustein des Quartiers. Die strassenbegleitende Bebauung reagiert dazu auf die urbane Lage, die Architektur auf die industrielle Geschichte des Ortes und die Umgebung.
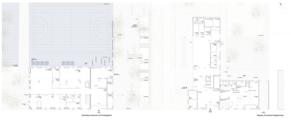
Der neue Kindergarten fügt sich nahtlos an der Ostseite des bestehenden Heinrichschulhauses auf voller Höhe und mit kleinem Fussabdruck an. Obwohl der Neubau ablesbar bleibt, verschmelzen beide Gebäudeteile zu einer kraftvollen Einheit zwischen Stadtraum und Quartierpark.
Im Erdgeschoss des Anbaus entstehen grosszügige Foyerbereiche für Schule und Kindergarten mit separaten Zugängen und interner Verbindung. Vier nahezu identische Obergeschosse sind effizient Übereinandergestapelt und nehmen die vier Kindergartengruppen auf. Gruppen- und Klassenraum sind jeweils zweiseitig belichtet und über einen Materialbereich mit Arbeitszone zusammengehängt. Die grossen Öffnungen schaffen starke Bezüge in den städtischen Strassenraum, zum benachbarten Neubau und in den Park mit Freiflächen für Schule, Kindergarten und Hort. Garderobe und Nasszellen vervollständigen den Grundriss der U-förmig um das befensterte Treppenhaus gelegt ist. Im Dachgeschoss wird ein zusätzlicher, zum Teil gedeckter Aussenbereich für den Unterrichts- und Pausenbetrieb mit Spielgeräten und Sitzgelegenheiten angeboten. Betreuung und Kindergarten sind auf zwei Geschossen direkt miteinander verbunden. Schüler- und Lehrerbereiche des Heinrichschulhauses können je nach Betriebskonzept ebenfalls an den Neubau angeschlossen werden.
Der Neubau Schütze vereint in einem Bauvolumen drei autark funktionierende Nutzungseinheiten. Während sich Turnhalle und Bibliothek jeweils nur in den Park respektive den Stadtraum orientieren zeigt sich das Quartierhaus mit seinen Bewegungsräumen im Strassenbild und öffnet sich gleichzeitig entlang des Schützewegs zum Park. Konsequent erschliesst sich die Bibliothek von der Heinrichstrasse, Turnhalle und Quartierhaus vom Schütze Weg. Beiden Eingängen sind offene Foyerbereiche angegliedert, welche sich für Grossanlässe oder Ausstellungen zusammenschalten lassen.
Beim Neubau werden für Industriegebäude typische Materialien verwendet und so ein Bezug zur Geschichte des Areals hergestellt. Auch die Art der Materialanwendung, das bewusste Zeigen der rohen Konstruktion ohne „kosmetische Verschönerungen”, zeugt vom industriellen Charakter der Bebauung. Trotz der offensichtlichen Analogie zu historischen Vorbildern stellt das Projekt durch die präzise Ausformulierung der Details einen zeitgemässen Beitrag zur modernen Architektur dar. Die äussere Erscheinung ist geprägt durch ein fein profiliertes Backsteingebäude welches auf einem Sichtbetonsockel ruht. Die Profilierung zeigt auf ehrliche Weise das statische System des Gebäudes, skelettartig werden die Lasten in die Fundamente abgeleitet. Auch im Inneren wird dieses System spürbar. Die Aussenwände bestehen aus einem tragenden Sichtbetonskelett, welches mit sichtbarem Backsteinmauerwerk ausgefacht wird. Die Geschossdecken bleiben ebenfalls roh in Sichtbeton, technische Installationen werden sichtbar unter der Decke geführt oder in diese integriert. Komplettiert werden die Räume durch hölzerne Einbauten und Bodenbeläge bzw. gegossene Hartbetonböden in den Erschliessungsräumen.
Studio Urbane Strategien GmbH
Leipziger Platz 2
70197 Stuttgart
Prof. Dr. Martina Baum
Prof. Markus Vogl
Architekten & Stadtplaner BDA
info@studiourbanestrategien.com
Tel. 0711 31 55 03 93
Universität Stuttgart, SuE: Lehrstuhl für Städtebau und Entwerfen
Die Umgebung des Schütze-Areals im Kreis 5 zeichnet sich durch bauliche Dichte, Nutzungsmischung und strassenbegleitende Gebäude aus, die klassische urbane Strassenräume bilden. Die neue Bebauung orientiert sich daran, ergänzt das Vorhandene und entwickelt es weiter. Dicht, kompakt und urban ist die Prämisse für die Transformation des Schütze-Areals. Ein haushälterischer Umgang mit Land spielt dabei eine ebenso wichtige Rolle wie eine städtebauliche Setzung in einer heterogenen urbanen Umgebung.
Ein neuer Baustein aus Pestalozzi-Bibliothek, Quartierhaus und Turnhalle ergänzt die bestehende Bebauung an der Heinrichstrasse und entlang des Schützewegs. Die Nutzungen kommunizieren über die Erdgeschosse mit dem Strassenraum und den Freiräumen, zeigen ihre Nutzung nach aussen und laden die Menschen ein. Die Massstäblichkeit orientiert sich an der ehemaligen industriellen Nutzung, welche auch die neuen Gebäude in der Umgebung aufgenommen haben. Die hohe Nutzungsdichte und -intensität sowie die attraktiven Freiflächen machen das Schütze-Areal zu einem urbanen Ort und zentralen Baustein des Quartiers. Die strassenbegleitende Bebauung reagiert dazu auf die urbane Lage, die Architektur auf die industrielle Geschichte des Ortes und die Umgebung.
Der neue Kindergarten fügt sich nahtlos an der Ostseite des bestehenden Heinrichschulhauses auf voller Höhe und mit kleinem Fussabdruck an. Obwohl der Neubau ablesbar bleibt, verschmelzen beide Gebäudeteile zu einer kraftvollen Einheit zwischen Stadtraum und Quartierpark.
Im Erdgeschoss des Anbaus entstehen grosszügige Foyerbereiche für Schule und Kindergarten mit separaten Zugängen und interner Verbindung. Vier nahezu identische Obergeschosse sind effizient Übereinandergestapelt und nehmen die vier Kindergartengruppen auf. Gruppen- und Klassenraum sind jeweils zweiseitig belichtet und über einen Materialbereich mit Arbeitszone zusammengehängt. Die grossen Öffnungen schaffen starke Bezüge in den städtischen Strassenraum, zum benachbarten Neubau und in den Park mit Freiflächen für Schule, Kindergarten und Hort. Garderobe und Nasszellen vervollständigen den Grundriss der U-förmig um das befensterte Treppenhaus gelegt ist. Im Dachgeschoss wird ein zusätzlicher, zum Teil gedeckter Aussenbereich für den Unterrichts- und Pausenbetrieb mit Spielgeräten und Sitzgelegenheiten angeboten. Betreuung und Kindergarten sind auf zwei Geschossen direkt miteinander verbunden. Schüler- und Lehrerbereiche des Heinrichschulhauses können je nach Betriebskonzept ebenfalls an den Neubau angeschlossen werden.
Der Neubau Schütze vereint in einem Bauvolumen drei autark funktionierende Nutzungseinheiten. Während sich Turnhalle und Bibliothek jeweils nur in den Park respektive den Stadtraum orientieren zeigt sich das Quartierhaus mit seinen Bewegungsräumen im Strassenbild und öffnet sich gleichzeitig entlang des Schützewegs zum Park. Konsequent erschliesst sich die Bibliothek von der Heinrichstrasse, Turnhalle und Quartierhaus vom Schütze Weg. Beiden Eingängen sind offene Foyerbereiche angegliedert, welche sich für Grossanlässe oder Ausstellungen zusammenschalten lassen.
Beim Neubau werden für Industriegebäude typische Materialien verwendet und so ein Bezug zur Geschichte des Areals hergestellt. Auch die Art der Materialanwendung, das bewusste Zeigen der rohen Konstruktion ohne „kosmetische Verschönerungen”, zeugt vom industriellen Charakter der Bebauung. Trotz der offensichtlichen Analogie zu historischen Vorbildern stellt das Projekt durch die präzise Ausformulierung der Details einen zeitgemässen Beitrag zur modernen Architektur dar. Die äussere Erscheinung ist geprägt durch ein fein profiliertes Backsteingebäude welches auf einem Sichtbetonsockel ruht. Die Profilierung zeigt auf ehrliche Weise das statische System des Gebäudes, skelettartig werden die Lasten in die Fundamente abgeleitet. Auch im Inneren wird dieses System spürbar. Die Aussenwände bestehen aus einem tragenden Sichtbetonskelett, welches mit sichtbarem Backsteinmauerwerk ausgefacht wird. Die Geschossdecken bleiben ebenfalls roh in Sichtbeton, technische Installationen werden sichtbar unter der Decke geführt oder in diese integriert. Komplettiert werden die Räume durch hölzerne Einbauten und Bodenbeläge bzw. gegossene Hartbetonböden in den Erschliessungsräumen.
-
-
-
-
-
-
-
ProEXR File Description =Attributes= cameraAperture (float): 65.000008 cameraFNumber (float): 11.000000 cameraFarClip (float): 1000000015047466200000000000000.000000 cameraFarRange (float): 1000.000000 cameraFocalLength (float): 40.000004 cameraFov (float): 78.155418 cameraNearClip (float): 0.000000 cameraNearRange (float): 0.000000 cameraProjection (int): 0 cameraTargetDistance (float): 69.458443 cameraTransform (m44f) channels (chlist) compression (compression): Zip16 dataWindow (box2i): [0, 0, 4999, 2593] displayWindow (box2i): [0, 0, 4999, 2593] lineOrder (lineOrder): Increasing Y pixelAspectRatio (float): 1.000000 screenWindowCenter (v2f): [0.000000, 0.000000] screenWindowWidth (float): 1.000000 =Channels= A (half) B (half) G (half) R (half) VRayBackground.B (half) VRayBackground.G (half) VRayBackground.R (half) VRayGlobalIllumination.B (half) VRayGlobalIllumination.G (half) VRayGlobalIllumination.R (half) VRayMtlID (uint) VRayReflection.B (half) VRayReflection.G (half) VRayReflection.R (half) Z (half)
Studio Urbane Strategien GmbH
Leipziger Platz 2
70197 Stuttgart
Prof. Dr. Martina Baum
Prof. Markus Vogl
Architekten & Stadtplaner BDA
info@studiourbanestrategien.com
Tel. 0711 31 55 03 93
Universität Stuttgart, SuE: Lehrstuhl für Städtebau und Entwerfen